Royal Victoria Docks

© Squire and Partners, Royal Victoria Docks masterplan

Mixed use residential project
RIBA work stages C/F

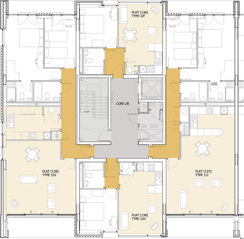
Mixed use residential project, private and affordable housing with retail units at ground floor level. Assisting project architect by amending marked drawings, in charge of conceptual design work for the health club and detail design work in the cores of the buildings.

Royal Victoria Docks (marketed as Capital East) won gold in the 'Best Apartment' category and silver in the 'Best Internal Layout' category at the 2005 What House Awards.

Royal Victoria Docks (marketed as Capital East) won the 'Best London Development' award at the 2005 Daily Mail UK Property Awards.

Royal Victoria Docks (also named Capital East) was shortlisted for a Housing Design Award 2006, exhibited at Whitehall.

Squire and Partners

© Squire and Partners, Typical floor plan for 1 and 2 bedroom flats
© Squire and Partners, photograph by Will Price www.willpryce.com
© Squire and Partners, photograph by Will Price www.willpryce.com
© Squire and Partners, photograph by Will Price www.willpryce.com